项目简介
基地位于南京市溧水新区,整体规划目标"山水城心、幸福溧水、府园共融、儒道互补",围绕"永阳新城、空港新城、高铁新城"三大城市片区发展。项目位于永阳新城核心区内,是溧水区主要发展区域,未来机遇明显。
△ 项目区位图
设计愿景
"尘世之外,秀水之间"——返璞归真,回归自然,于世俗喧嚣中找寻物我两忘的心境; 规划试图营造一种现代城市的隐居生活,打造一个生态的,人文的"岛居"社区。
△ 鸟瞰展示
△ 高层效果展示
△ 叠墅效果展示
△ 街角透视效果展示
规划概念
"水" 、"岸" 、"岛" 成为景观规划的主要元素,鉴于此,结合地形,引水筑岛,强调水乡文化体验,优化"岛"的形状以及构建"组团式"布局,形成"四岛两片区"。
△ 方案总图
△ 鸟瞰图模型
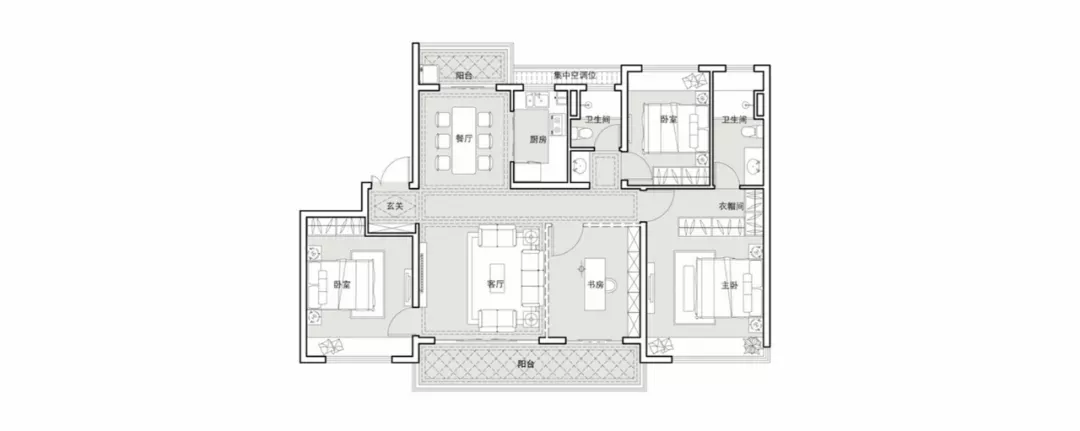
户型设计
在户型的设计中,通过洄游动线的设计将室内空间的动与静分离,注重内部功能空间的精细化设计,最大化户型南向面宽资源,采用大横厅,大阳台,南北通透的优势,同时预留足够的弹性空间,满足现代人居生活的多样性需求。
△ 140户型
△ 190户型
示范区概念
建筑是图像语言最好的表达方式,秩序性、层次性、仪式性是南京传统规划与建筑空间的核心。而在此次的营造中,我们采用了纵向叙事的手法,从水平到垂直,于方寸之中叠园成境,彰显中式园林意境。

项目以《诗经》作为理论基础,从文脉出发,取义自然,观山、戏水、游园、登临、宴乐、归家、雅居,来贯穿整个规划设计,希望在钢筋水泥桎梏已久的都市中,创造一些让人愿意亲近、停留的空间,重拾生活原始的美好。

一进院落作为入口前场空间,十字轴空间满足功能流线需求及通往中央景观的需求。景墙背后可见主体建筑起伏的屋顶,及屋檐下的竖向百叶,语言简洁。

第二进院落,迂回的廊道与幽静的水面,静中见动,动中寓静,第二进在建筑形制上承接入口,空间意象上又有所延伸和发展。

第三进院,为二层体量建筑,根据建筑形制,屋顶的造型也各有对应。“亭者,停也,人所停集也。”作为主庭院的,于云薄亭中,可将园中景色尽收眼底。重檐顶强调其作为门户的重要性。

四水归堂,完整的屋面之下,功能被进行了切割和完全的拉开,庭院嵌入其间,内外界限随之模糊,院内院外存有水面,倒影中,可由外见禅院生活,又可由内见山中风雨。

项目信息
项目类型:高层、叠拼
项目名称:建发南京G15地块
业主单位:建发集团
设计团队:师百川、廖文亚、黄凯、徐玲、陈美霞、尹宝玉、杨锦耀、李小龙
建筑面积:25.84万平米
设计时间:2020年