我们希望这所学校能让每个初入学校的小朋友感受到知识的力量
她的一草一木 一砖一瓦
都能给他们的学生时代留下美好的回忆
△ 东立面效果展示
项目简介
项目位于山东省德州市崇德五大道以东。地块东、南、北均为规划路,周边多为住宅建筑,距离德州市中心6.5KM,距离德州东站3.0km,交通便利,地理位置优越。基地周边2Km以内暂无配套小学,本项目将成为绿地城际空间站整体项目的重要公共配套,并且作为周边第一个落地的配套小学。
△ 项目区位图
基地东西长度约229m,南北长度约207m。西侧为崇德五大道,与基地间有宽25m的现状绿化带。场地东侧、南侧紧邻宽21m规划路,分别与中学地块、住宅区隔街相望。北侧紧邻14m宽规划路与规划商住地块相望。场地地势平坦,小学地块用地面积37973.6m²。
△ 基地分析图
设计愿景
古代圣贤在公共空间与人传道受业解惑,现代学校常于封闭集体空间教学,“教”—“学”成为固定的灌输模式,缺乏交流与互动。在这所新德州小学学校里,我们尝试将教学互动和庭院空间融为一体,打造开放灵活的校园空间,丰富交流场所。
△ 鸟瞰效果展示
规划高效布局模式,实现校园资源共享。融入多元和谐文化,塑造丰富校园文化。发展学生健康个性,形成学生健全人格。探索教育新旧联合,组建多样交流空间。
规划概念
建筑位于地块东侧,西侧为城市主干道。教学楼远离主干道可避免噪声干扰,操场布置于西侧,与城市绿化带相结合,形成干道旁的视觉开阔地,让师生远离噪声干扰。干道、绿化带、操场、教学楼、住宅依次形成了良好的过渡关系,使天际线富有层次感。

场地设两个出入口,分别位于不同的城市规划路。行人可由主入口的横轴进入校园,由门厅向纵厅分流,最高效的进入教室。车辆由校园主入口两侧的道路驶入。道路可环行,可双向行驶。停车位位于道路一侧,避开学生活动区的同时,兼顾停车效率。

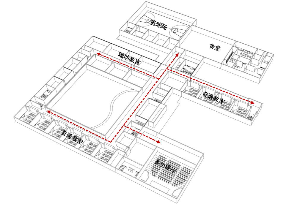
主入口门厅为人流集散点,学生和教师通过公共走廊和楼梯分散至各处。我们将普通教室分散在日照比较好的南向位置,北侧设置风雨球场和学生教师食堂,东南角独立设置多功能报告厅。

效果展示
△ 西立面效果展示
△ 北立面效果展示
项目信息
项目类型:学校
项目名称:德州经济技术开发区实验小学东城分校
业主单位:绿地集团
设计团队:徐大伟、黄金梅、谭湘武、王毅、谢峻俊
建筑面积:2万平米
设计时间:2020年