新闻媒体

金大地涡阳珑璋台项目

项目简介

项目位于涡阳县城南新区,北临锦绣大道,东临幸福路,西临向阳大道,南临规划道路包河路,距城市快速路真源大道0.65km,九龙大道0.95km,龙山路0.5km,周边交通路网便利,可达性强配套齐全,生活便利,适宜居住。

1.webp △ 项目区位图

设计愿景

真正的奢华是属于自己的生活方式,是不会被外界改变的有趣灵魂,对一种对仪式感的坚持。用坐标影响一座城市,并愿意为之付出,传承、永恒、专注于细节,并在更新的维度上,不断地创造着审美。作为城市界面的重要节点,金大地-珑璋台希望以拥抱未来的姿态、鲜明的对个性、对美学与空间有着极致追求,成为刷新城市天际线的崭新名片,同时为涡阳带来内外兼修的生活品质提升。

2.webp △ 项目总图

规划概念

在总体布局,立面形式、景观设计等诸多方面体现出对城市环境的尊重和关注,并通过合理的布局策略和独特形式语言,使这一区块积极地融入整体氛围中,成为城市形态的一个有机组成部分。

一"纵" :礼仪景观轴,充分利用对景手法串接 3 进庭院,体现入户的尊贵感。

一"横" :社区活动带,利用景观系统连接各种社区活动,丰富居民生活。

一"折" :滨水商业街,利用良好外部景观,打造风情商业街。

3.webp △ 鸟瞰效果展示

地块中心景观相互联系形成主要的规划轴线,享用小区内部中心大景观,楼宇之间留出较大的景观空间放置小区人行主入口,营造开放而尊崇的入口形象。

4.webp △ 沿街商业立面效果展示

建筑在高度和体量上不同的变化,像是生长在环境中的有机体,更富有张力和生命力,天际线也更加律动自然,为城市上空勾勒出不一样的风景。

5.webp △ 沿向阳大道立面效果展示

6.webp △ 沿街商业立面效果展示

内部环路兼消防车道功能做应急时使用。机动车进入后分流到地下车库,最大限度的减少区域内通行的车辆对中心景观的干扰,从而创造宁静安全的居住氛围。

7.webp △ 小区景观效果展示

8.webp △ 小区景观效果展示

建筑立面简洁有力,细致推敲体块的材质与比例关系。立面造型虚实对比明确,深浅材质的搭配运用创造出丰富的肌理变化效果,注重精致细节,打造高品质的住宅立面。

9.webp △ 高层立面效果展示

10.webp △ 洋房立面效果展示

筑造梦想“小世界”,有温度的全龄陪伴,有完善的社区配套。

11.webp △ 幼儿园立面效果展示

户型设计

12.png △ 105户型

13.webp △ 110户型

14.png △ 116户型

15.webp △ 120户型

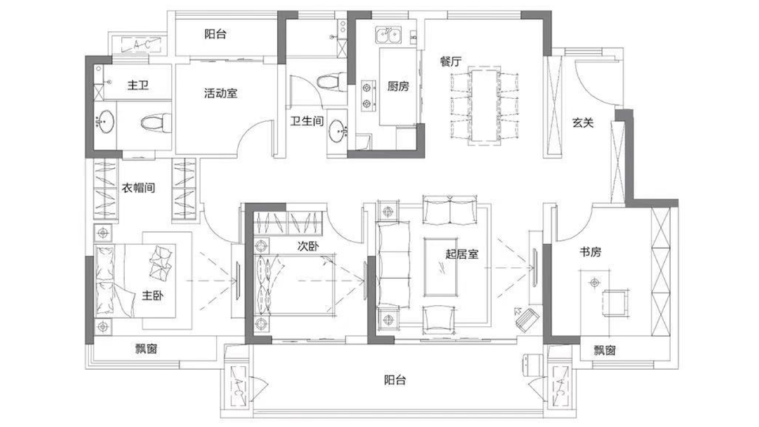
16.png △ 125户型

项目信息

项目类型:住宅

项目名称:金大地涡阳珑璋台项目

业主单位:金大地集团

设计团队:师百川,黄凯,廖文亚,徐玲,李小龙,傅驰茗,陈美霞,洪司元,杨雅茗,陈兵,罗玲

建筑面积:18.8万平米

设计时间:2020年