新闻媒体

绿地张家港高铁新城2020-B26-C/D地块

项目简介

本项目位于张家港高铁新城,东至鸿蒙路,南至华妙路,西至昇恒路,北至黎民路,用地平整。占地面积约163亩,容积率2.2/2.6,总建筑面积约33.5万方,地上总建筑面积约为25.3万方,地下建筑面积8.2万方。

1.png △ 项目区位图

设计愿景

" 因其地 " —— 因地制宜。充分考虑用地形状,规划设计中本着节地、生态融合的原则,组团分区,错落布置,符合“两型”及可持续发展理念。

" 逸其人 " —— 创造舒适宜人的空间。本项目根据场地现状,创造出丰富的空间,给居者提供舒适宜人的建筑内外空间。

2.webp △ 项目总图

规划概念

本项目清晰的规划轴线和组团分区,科学组织流线;结合整体空间布局和建筑形态,实现小区内部公共空间与城市空间一体化,并通过对小区整体天际线的把握,创造出一个既和谐又具有特色的城市空间形象。

合理布局景观轴线,创造丰富的环境层次;注意处理各种建筑空间的有机组合、过渡,做到公共空间的开放性、个人空间的私密性。宜人的建筑细节处理;建造一个自然和谐、独具魅力的人居环境,为居民提供配套设施现代化、居住环境生态化、健康智能的高品质社区。

3.webp △ 鸟瞰图

4.png △ 规划鸟瞰图

5.png △ 社区场景

6.webp △ 沿街商业

7.webp △ 社区入口大堂

8.webp △ 单体效果图

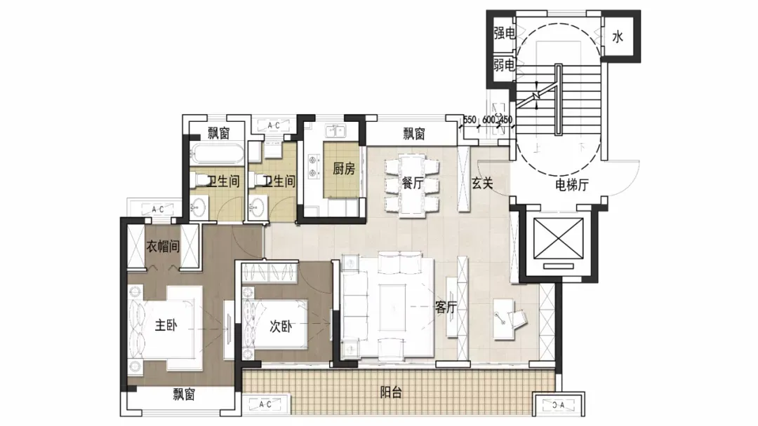
户型设计

户型南北通透,动静分区,流线设计合理,方便居家生活;独立玄关;拥有更好的归家体验;餐客贯通,拓展了活动空间;洋房户型3面宽南向阔景大阳台,豪华主卧套房,尽享轻奢生活。

9.webp △ 75户型

10.webp △ 95户型

11.webp △ 109户型

12.webp △ 140户型

项目信息

项目类型:高层住宅、洋房、商业

项目名称:绿地张家港高铁新城2020-B26-C/D地块

业主单位:绿地集团

设计团队:师百川、黄凯、尹宝玉、杨锦耀 、傅驰茗、罗玲、洪司元、李小龙、陈美霞、陈兵、杨雅茗

建筑面积:33.5万平米

设计时间:2020年